PROPERTY SUMMARY
PROPERTY DESCRIPTION
* Two storey modern townhouse
* Low Maintenance Living
* Sort After Location
***IF YOU WOULD LIKE TO APPLY FOR THIS PROPERTY, VIEW THE VIDEO (IF AVAILABLE) AND CLICK THE BUTTON TO CONTACT THE AGENT AND RECEIVE YOUR APPLICATION LINK. ***
*Please be advised rent is to be paid per calendar month.*
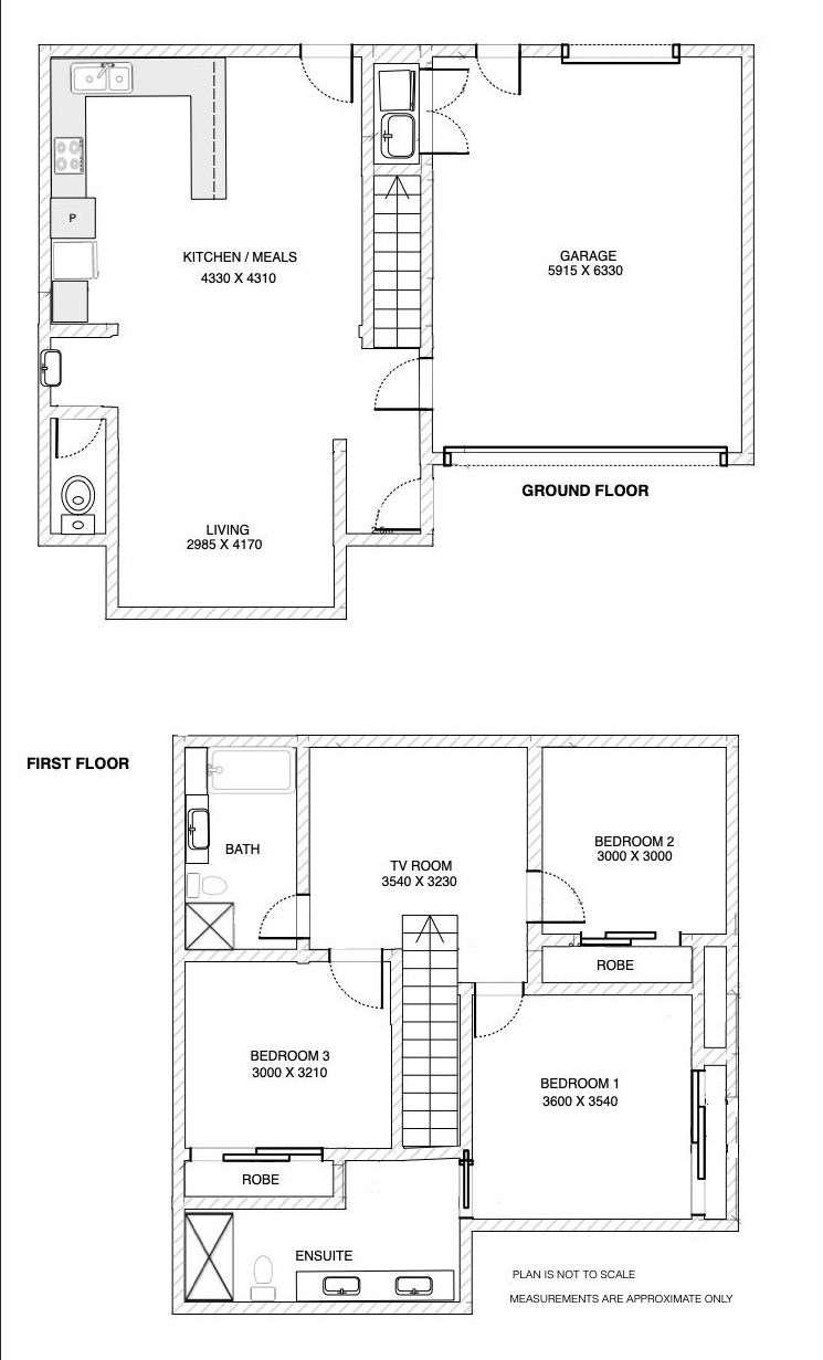
Here on offer is a fantastic opportunity to move into a near new townhouse in the heart of Newtown, close to local primary and secondary schools, a short walk to Pakington street's many cafes and shops and the Geelong CBD, or for a more leisurely outlook a short stroll to the Barwon river or Balyang sanctuary. Wonderful fixtures and fittings offering a brilliant lifestyle within a sort after location with the bonus of low maintenance living.
Situated over two levels with downstairs open plan living and dining with split system heating and cooling and central heating throughout. This adjoins the very functional and well equipped kitchens with stone benchtops, gas 900mm stainless steel oven and stove top with stainless steel canopy and dishwasher. Upstairs accommodation has 3 good sized bedrooms all containing built in robes. Master containing full ensuite then a central bathroom which services the remaining bedrooms with bath, shower and toilet. A good sized upstairs sitting room or study space being a perfect additional area for relaxing or potential study/work from home. Low maintenance courtyard beautifully maintained for outdoor living and a double remote garage with internal access.








