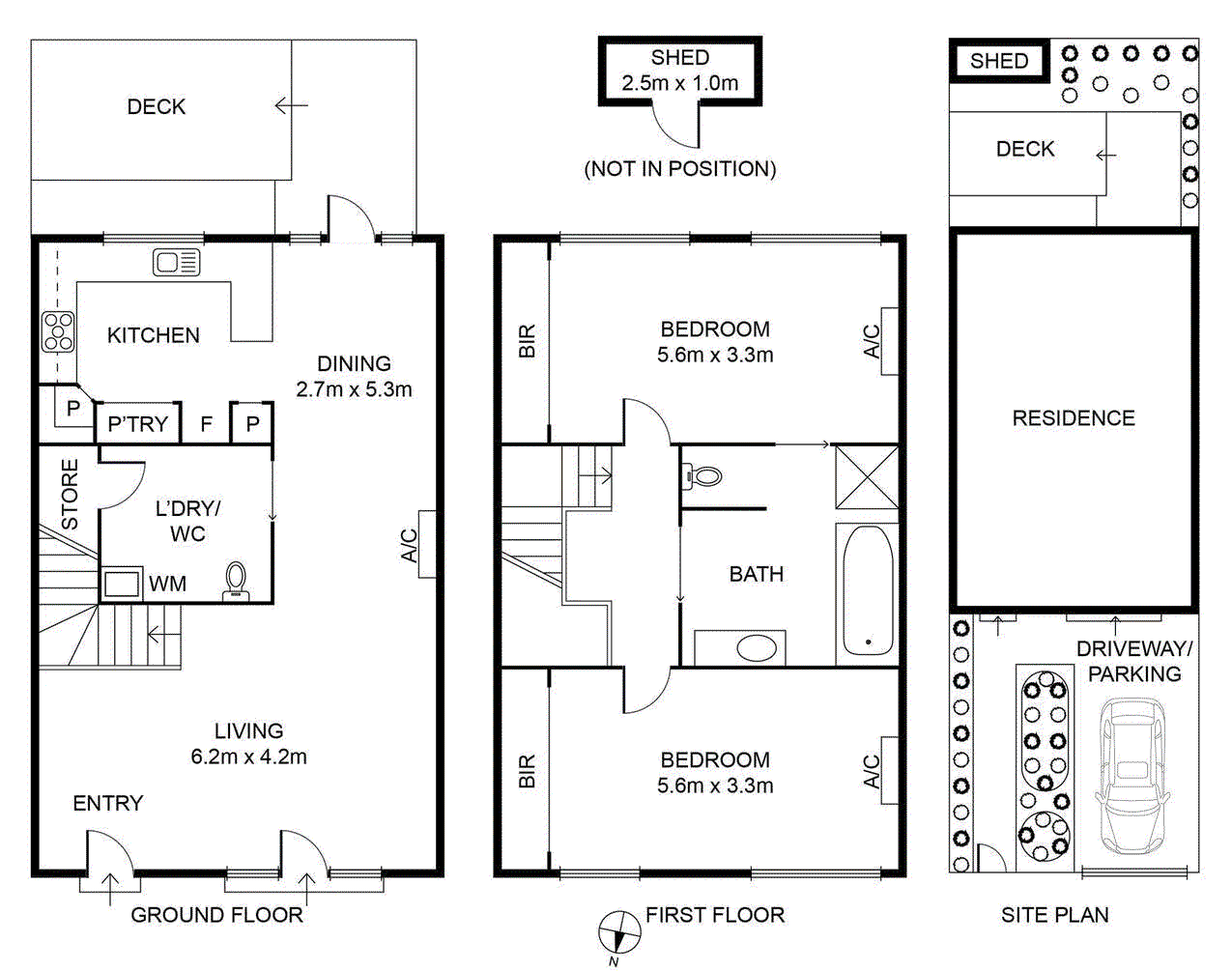
PROPERTY SUMMARY

Bed 2 Bath 1 Car 1

PROPERTY DESCRIPTION

This property is currently not available.

* 3 Split Systems
* Open plan living
* Huge bedrooms

***IF YOU WOULD LIKE TO APPLY FOR THIS PROPERTY, VIEW THE VIDEO (IF AVAILABLE) AND CLICK THE BUTTON TO CONTACT THE AGENT AND RECEIVE YOUR APPLICATION LINK. ***
* Please be advised rent is to be paid per calendar month.*

This gorgeous, executive townhouse is now up for grabs!

Located in a popular and convenient pocket of Geelong West, you are close to everything from shops and cafes to doctors and schools- you can't beat this location!

The home is stunning- comprising of 2 large bedrooms- each with a split system, open plan kitchen/living with a third split system, and a central bathroom with extra toilet downstairs- it ticks every box! The well appointed kitchen has dual cooking, a dishwasher and tonnes of storage! Outside you have secure parking for one car and a fabulous courtyard, perfect for entertaining! Light, spacious and ultra-modern, this is sure to be snapped up quickly!

If you are a property investor or looking to invest in property, contact Ted Arthurson to discuss how Release Property Management can reduce your vacancy rate, maximise your rental return and maintain the value of your investment property – 0400 246 566

AVAILABLE DATE: August 09, 2024